Panoramica
- 3 Bagni
- 300 m2
Descrizione
MONREALE-CACULLA SANT’ELIA



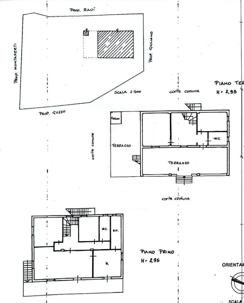
Moderna immobiliare propone in vendita panoramica e maestosa villa sita a Monreale e più precisamente in via P. F. 2 zona Caculla/Sant’Elia. La proprietà si sviluppa su tre elevazioni fuori terra con un terreno di pertinenza di circa 1.100 mq e grazie ai suoi molteplici spazi di osservazione esterni ci delizia di una vista mozzafiato su tutto il golfo di Palermo. L’immobile è già predisposto per il frazionamento in 3 unità immobiliari perchè ogni piano ha un punto di accesso completamente autonomo, sebbene all’interno siano tutti collegati tra di loro attraverso una scala in legno. Di seguito la suddivisione dettagliata.
Piano Terra; Ingresso da grande terrazzo coperto che porta ad uno studio completamente a giorno, cucina, wc, altra grande camera anch’essa adibita a studio, ampio disimpegno con scala che porta al piano superiore, vano caldaia.
Piano Primo; salone pari a due vani con finestre e porta finestra, termo camino grande balcone, 2 camere, cucina, ripostiglio, wc.
Piano Secondo; saloncino, camera, cucina, wc e grandissimo terrazzo panoramico.
L’immobile è in perfette condizioni, necessita soltanto di qualche intervento di manutenzione, pavimenti in cotto, infissi pvc o legno in vetrocamera, climatizzatori in tutti gli ambienti, riscaldamenti a parete in tutti gli ambienti, caldaia a pellet, impianto fotovoltaico con pannelli solari, cisterna di circa 30.000 litri di acqua, l’acqua è fornita dal consorzio di Giacalone nella misura di 42 minuti ogni 15 giorni.
PER QUALSIASI INFORMAZIONE CONTATTARE IL NUMERO 3208385621
Indirizzo: VIA PENSABENE 8, MONREALE
Città: Palermo
Area: Monreale
Zip: 90046
Nazione: Italia
Apri su google maps
ID Proprietà: 22284
Prezzo: € 180.000
Superficie Calpestabile: 300 m2
Superficie Commerciale: 320 m2
Locali: 8
Bagni: 3
Other Features
Fotovoltaico
Frazionabile
Giardino
Pannelli solari
Parcheggio
Riscaldamento
Terrazza
Simili
VILLETTA A MONREALE LOCALITA’ GIACALONE
€ 55.000
Moderna immobiliare propone in vendita a Monreale ed esattamente in via P. G 10 (ora Via Luisa Spagnoli) nella località di Giacalone graziosa villetta composta da due appartamentini gemelli, catastalmente separati, e perfettamente uguali. Gli appartamenti si trovano rispettivamente, uno al piano terra e uno al piano primo, ognuno ha un ingresso indipendente, ognuno ha il proprio spazio esterno e posto auto, tuttavia risultano ...
























































